Let Hill Top REal Estate Find your
dream home
2005 Trail Ridge LaneSan Dimas, CA 91733
Due to the health concerns created by Coronavirus we are offering personal 1-1 online video walkthough tours where possible.




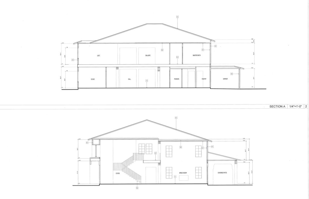
Introducing Lot 2-01 Plan 5 at Brasada Estates, a newly built Spanish-style residence that blends timeless architecture with modern luxury with no mello-roos. This two-story home spans 5,937 square feet with five bedrooms and five and a half bathrooms, set on a generous 43,574 square foot lot. Step through the elegant foyer into soaring ceilings and open spaces designed for both comfort and entertaining. The expansive great room with a fireplace flows seamlessly into the gourmet kitchen, which features a large center island, walk-in pantry, and a separate butler’s kitchen for effortless hosting with sub-zero & Wolf appliances. A light-filled breakfast nook, dedicated study, and formal gathering areas offer versatility for both everyday living and special occasions. Upstairs and down, each bedroom is thoughtfully appointed with its own en-suite bathroom. The primary suite provides a private retreat with abundant closet space and spa-inspired finishes. Outdoor living is equally inviting with a covered patio overlooking the expansive lot, offering ample room to create your dream backyard. A two-car garage plus an additional single-car garage provide flexibility for parking and storage. Modern conveniences such as a tankless water heater, high ceilings, and 24-hour security further elevate the home’s appeal. Located minutes from the 210 and 57 freeways, Brasada Estates offers the rare combination of luxury, privacy, and convenience. Estimated completion February 2026 move-in date.
| 2 months ago | Listing first seen on site | |
| 2 months ago | Listing updated with changes from the MLS® |
This information is for your personal, non-commercial use and may not be used for any purpose other than to identify prospective properties you may be interested in purchasing. The display of MLS data is usually deemed reliable but is NOT guaranteed accurate by the MLS. Buyers are responsible for verifying the accuracy of all information and should investigate the data themselves or retain appropriate professionals. Information from sources other than the Listing Agent may have been included in the MLS data. Unless otherwise specified in writing, the Broker/Agent has not and will not verify any information obtained from other sources. The Broker/Agent providing the information contained herein may or may not have been the Listing and/or Selling Agent.

Did you know? You can invite friends and family to your search. They can join your search, rate and discuss listings with you.