Let Hill Top REal Estate Find your
dream home
1325 Medford RoadPasadena, CA
Due to the health concerns created by Coronavirus we are offering personal 1-1 online video walkthough tours where possible.




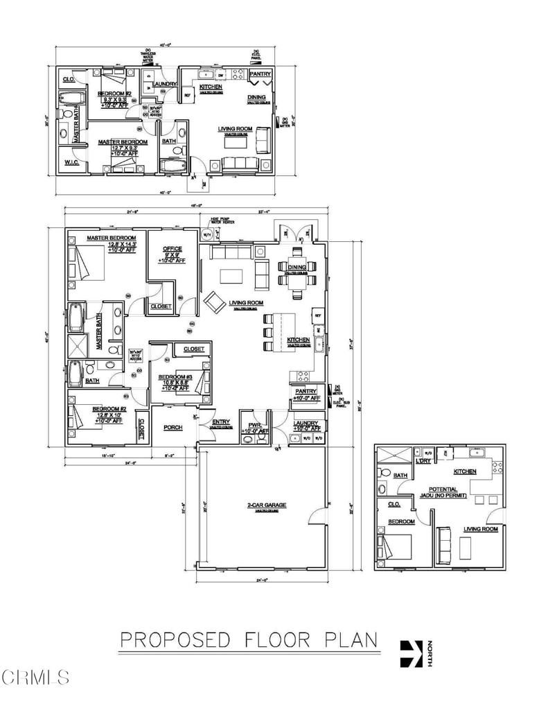
Rare opportunity to build your dream home in Upper Hastings Ranch with a fully cleared lot with Ready to Issue (RTI) permits for a single family home PLUS an ADU! Lot with panoramic views and nestled at the end of a quiet cul-de-sac in the highly sought-after Upper Hastings Ranch neighborhood. Approved permits enable you to build an 1800SF 3br + office / 2.5 ba single family home and an 800sf 2br / 2ba ADU. In addition, drawings are complete for a potential 1br/1ba JADU (not submitted for approval and no guarantees provided for approval). This is a rare opportunity to purchase a lot with RTI permits in an the prestigious Hastings Ranch area where the surrounding blocks are full of residences. Hastings Ranch is known for its charming community and community driven holiday light displays! The location is amazing with Hastings Ranch shopping and convenience to Eaton Canyon Golf Course, Caltech, Rose Bowl, Metro, nearby parks and farmers' market, and quick access to the 210 freeway.
| 4 days ago | Listing updated with changes from the MLS® | |
| 5 days ago | Listing first seen on site |
This information is for your personal, non-commercial use and may not be used for any purpose other than to identify prospective properties you may be interested in purchasing. The display of MLS data is usually deemed reliable but is NOT guaranteed accurate by the MLS. Buyers are responsible for verifying the accuracy of all information and should investigate the data themselves or retain appropriate professionals. Information from sources other than the Listing Agent may have been included in the MLS data. Unless otherwise specified in writing, the Broker/Agent has not and will not verify any information obtained from other sources. The Broker/Agent providing the information contained herein may or may not have been the Listing and/or Selling Agent.

Did you know? You can invite friends and family to your search. They can join your search, rate and discuss listings with you.